1. 产品特点:
采用无机纤维纺织物经特殊处理后制作而成的帘面,特点是相对体积较小、重量轻、占用空间小、能耗低、背火面温度较低,并能显著降低建筑物的承载负荷,满足安装空间的要求。经过国家消防设备检测部门检测,耐火极限能达到3h,符合国家规范要求。颜色具有多样性,可以和内装饰进行协调搭配,给人以舒适的感觉。
无机复合型防火卷帘适用于各类工业与民用建筑中需防火分隔的部位,大面积的厂房、宾馆、仓库、候机楼等场最宜选用。帘面的高度、宽度一般采用建筑标准中的常用尺寸,亦可按用户需要进行定制。

2.技术性能
2.1耐火极限≥3.0h。帘面由多种耐高温非金属材料经特殊处理组合而成。质地柔韧,抗拉强度大,具有金属卷帘无法相比的耐高温、耐腐蚀性能。
2.2 体积小:帘面厚度薄,占用空间小,可以降低建筑物的层高。
2.3 重量轻:帘面重约3.5kg/m2,是钢质防火卷帘重量的1/10,建筑物无须作预埋处理。
2.4 跨度大:由于帘面重量轻,卷轴的绕度小,所以跨度可达12m以上。
2.5 启动灵活,噪音小且无需水幕保护,大幅度降低了工程的造价。
2.6 颜色具有多样性,可以和内装修进行搭配,给人以舒适的感觉,而不是钢铁的冷硬。
2.7 三种操作方式:火灾消防中心联动控制(由消防控制中心发出控制信号);手动控制电动操作(由按钮控制盒实现电动操作);非常情况下的手动链条操作。
2.8 电动机功率0.75kw,动力电源380V、50Hz,控制电源DC24V。
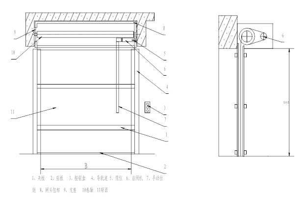
3. 结构与安装方式
3.1结构:由卷帘帘面、卷轴、支座、启闭机、控制器等组成。卷轴两端由特殊设计的机构支承,能补偿墙面的平面误差,使卷轴在任何情况下均能转动自如。
3.2 安装方式:按导轨在建筑中的位置也分为中封式及侧封式两种
4. 安装及调试
4.1 安装
4.1.1防火卷帘门是通过嵌固在门洞附近墙体上的预埋件或膨胀螺栓安装的,卷轴中心高为H-h(中封式)或H+h(侧封式)。先将垫板焊固在预埋件上,然后用螺栓固定卷轴的左、右支架,并安放卷轴。卷轴安装后的回转中心水平度在全长范围内不应大于2mm,且应转动灵活。然后安装减速电动机和电器控制部分,再空负荷试车。
4.1.2卷门机一般安装于卷门的右端(从屋内朝门外看),如需将其装于左端,只需松开环形链条上方棘爪单向器二螺钉,翻转180°重新装配,按钮开关线白(上)蓝(下)色对调。
4.1.3 卷门机的机头板可用膨胀螺丝固定在柱子上或采在预埋件焊接。
4.1.4 安装时应使环形链条自出口处垂直向下,当不能满足时,可拧松机体中部四个紧固螺钉,转动壳体,使环形链条符合要求,然后紧固。注意紧固处不得有间隙存在,否则将影响电磁铁吸力。
4.1.5链条安装时,控制链条的垂度5~10mm,可以调整中心距调紧螺钉,使链条张紧合理,满足垂度要求。
4.2调试:
4.2.1试机前应先松开限位器锁紧螺钉,用手动方法将卷门升或降至极限点处,转动限位螺套使限位滑块移至行程开关起断电时的最佳位置,然后才分别拧紧上行和下行锁紧螺钉。
4.2.2用手拉环形链条让卷门上升离地面约1米,然后用点动方式进行负载试运行,依运行情况再适当调整。注意运行时间不超过5分钟。
4.2.3三相卷门机安装时,电源相序不许接反,否则卷门机不能控制,损坏卷门。
4.2.4卷门机安装时,应可靠接地。
4.2.5试车后再将帘板安装在卷轴,再安装导轨:按指定位置将两侧导轨焊固于墙体的预埋件上,各导轨应在同一垂直的平面上,两侧吻合长度均相等。
4.2.6负荷试车及调试:首先使用手动试运行,再用电动机启闭数次,并对行程限位开关做相应的调整,直至列卡位、阻滞、限位不准确及异常噪声等现象为止。
5. 使用与管理
5.1初期使用时,宜按安装要求检查是否完善,并按上述试车方法做试运行,如有异常应停机检查。
5.2防火卷帘门平时必须处于正常使用状态,遇火灾时,方能发挥防火作用。因此,该门应有专人负责检查管理,并每月定期运行检查二至三次;电器控制应灵敏,机械传动应正常,行程开关控制卷帘升降的位置要准确。
产品推荐

